Преобразуйте свою спальню с помощью углового шкафа, который оптимально использовать пространство. В нашей статье представлены различные виды конструкций угловых шкафов, а также размеры и чертежи для их создания. Не упустите возможность создать функциональное и стильное хранение с помощью углового шкафа в спальне.
Разновидности моделей шкафов
Шкафы относятся к основным предметам мебели, без которых сложно представить даже самые минималистичные обстановки. От внешнего вида этих габаритных конструкций во многом зависит восприятие всего интерьера помещения.
Шкафы бывают различных типов
Используются два основных вида изделий в зависимости от системы открывания дверей (представлены варианты их чертежей).
-
Распашные. Этот вид конструкций, используемый с давних пор, и сегодня, в разных ситуациях, часто бывает безальтернативным.
-
Шкафы-купе. Предметы мебели, которые оснащены раздвижными дверцами, открывающимися в одной плоскости, очень функциональны. Не требуется дополнительной площади для их открывания, что позволяет оптимизировать пространство. Особенно этот момент важен в помещениях небольших габаритов, например, в коридоре. Удобнее всего устанавливать такие изделия в нишах.
В зависимости от способа установки можно выделить три основные типа шкафов.
-
Встроенные. В таких моделях, становящихся частью интерьера и не загромождающих пространство, любые поверхности в комнате могут служить конструктивным элементом шкафа: пол, потолок, стены и ниши. Одним из преимуществ является существенная экономия на материалах. Большим плюсом конструкций, установленных до самого потолка, является отсутствие скоплений пыли наверху, что позволяет сэкономить силы на уборке. Однако передвинуть встроенную конструкцию не представляется возможным. Все оформление помещения во многом будет определяться расположением шкафа, а изменить его не получится.
-
Частично встроенные. Эти модели, как правило, также устанавливаются на всю высоту помещения. Они отличаются от встроенных тем, что лишь вместо части деталей задействуют стены, пол или потолок. Передвинуть такой шкаф также довольно сложно.
-
Корпусные. Отдельно стоящая конструкция, состоящая из боковин, задней стенки, днища, верха и створок, может быть установлена в любой точке комнаты и так же легко, при необходимости, перемещена на новое место. Обычно между верхом шкафа и потолком остается зазор, в результате чего его верхняя поверхность становится «пылесборником».
Шкафы могут быть линейными, то есть установленными по прямой линии, угловыми или даже радиусными.
Сферический шкаф-купе
Они могут различаться глубиной, внутренним наполнением и количеством створок.
Основными материалами, используемыми для изготовления конструкций, являются дерево, ДСП, ДВП, МДФ, фанера, стекло и пластик. В производственных помещениях или в офисах можно встретить и металлические модели.
Металлический шкаф для офиса
Основные нюансы при составлении чертежей угловых шкафов-купе
При проектировании таких шкафов склоняются к встроенным и полувстроенным конструкциям. Практически всегда убирается дно у углового шкафа-купе и задние стенки. Внутренние перегородки, полки крепятся к полу и к стенам. Крыша у углового шкафа-купе также не обязательна. Обычно от нее отказываются вовсе.
Самые малые размеры углового ограничиваются только шириной дверного проема. Створка купе не должна быть уже 600 мм, иначе она будет неустойчива в треке. Основные стандарты при проектировании можно прочитать в статье «Расчет дверей-купе опорного вида».
Например, при габаритах 1200х1200 мм от угла и ширине боковины 400 мм проем для дверей купе будет порядка 1200 мм по центру трека.

При этом ширина направляющих «съест» от функциональной глубины боковин порядка 150 мм. Это также нужно учитывать при проектировании внутреннего наполнения углового шкафа купе. Дверям ничего не должно мешать при движении.

Как вариант, можно разместить ниши под крючки (если составляется чертеж углового шкафа-купе в прихожую), гладильную доску или неглубокие полки.
Сборка углового шкафа
Угловые конструкции чаще всего выбирают для небольших помещений или для комнат с нестандартными размерами. Эти изделия отличаются от классических шкафов особенностью конструкции, и имеют свои преимущества и недостатки.
Чтобы собрать конструкцию своими руками, нужно отметить особенности этого предмета мебели:
- перед тем как выбрать модель в определенное помещение, нужно замерить все размеры: ширину, высоту, глубину;
- в угловом шкафу находится четыре стенки, в отличие от традиционных изделий: две находятся около стены, остальные две являются опорными частями, расположенными по бокам;
- угловые модели могут укомплектовываться раздвижными и распашными дверями;
- мебель может иметь различную форму.
Какие материалы и инструменты необходимы
От используемого материала для изготовления шкафа, будет зависеть его продолжительность эксплуатации. Все материалы условно делятся на две основные группы:
- ДВП.
- натуральное дерево.
Самостоятельная сборка конструкции потребует наличия определенных инструментов:
- шуруповерт требуется для вкручивания шурупов и креплений при расстановке полок;
- перфоратор или электродрель необходимы для выполнения отверстий в дереве;
- ножовка требуется для обрезки материала;
- отвертка чаще всего используется для глубокой посадки саморезов;
- набор шестигранников нужен для крепления фурнитуры.
Важные моменты при сборке углового шкафа
Особенности изготовления шкафа углового типа:
Можно опираться на уже готовые чертежи или создать свои.
Угловые изделия требуют особой внимательности во время создания схемы и сборки, в отличие от классических вариантов, потому у неопытного мастера могут появиться проблемы. Если недостаточно опыта, то желательно доверить вырезку всех элементов специалисту.
Чтобы не собрать элемент меньшего размера, необходимо учесть толщину лезвия пилы.
Толщина стен выбирается не меньше 20 мм
Иначе будет недостаточная прочность конструкции.
Создавая чертеж, нужно обратить внимание на неровности пола. Если он кривой, то между дверями появятся щели. Для распашной системы это можно исправить с помощью регулировки навесов, а для раздвижной – изменением высоты роликов.
Направляющие для дверей обязаны крепиться параллельно.
Внимательно нужно подходить к разметке и креплению направляющих рельс для ящиков.
Крепление зеркала нужно начинать с приклеивания уплотнителя по контуру.
Ламинат к срезам ДВП фиксируется утюгом
Для распашной системы это можно исправить с помощью регулировки навесов, а для раздвижной – изменением высоты роликов.
Направляющие для дверей обязаны крепиться параллельно.
Внимательно нужно подходить к разметке и креплению направляющих рельс для ящиков.
Крепление зеркала нужно начинать с приклеивания уплотнителя по контуру.
Ламинат к срезам ДВП фиксируется утюгом.
Преимущества и недостатки
При создании кухонного проекта необходимо руководствоваться потенциальной функциональностью пространства и полностью использовать помещение. Кухонный угловой шкаф в составе гарнитура имеет следующие достоинства.
- Вариативность и удобство – первый и главный критерий, по которому оценивается любая планировка. Специфика конструкции бокового шкафа позволяет креативно переосмысливать кухонный треугольник “холодильник-плита-раковина” и варьировать расположение последних. Одними из самых интересных кухонных дизайнов можно считать те, где мойка или варочная поверхность расположены в углу.
- Эргономичность в современном г-образном кухонном гарнитуре подразумевает не только удобные, но и функциональные шкафы для хранения. При организации углового пространства таким образом можно остановить свой выбор на напольном и навесном модулях с выдвигающимися блоками, полками, каруселью, или спроектировать высокий шкаф-пенал.
- Стильной и уютной кухню может сделать перепланировка. Угловое пространство в маленькой кухне может работать в качестве обеденной зоны, если разместить там барную стойку, опирающуюся на угловую тумбу. Посредством решения двух задач одновременно кухня приобретает свой неповторимый облик.

К главным преимуществам угловых гарнитуров относятся: функциональность и экономия места.
Конструкция с угловым шкафом не имеет ярко выраженных недостатков, однако следует иметь в виду следующее.
Будущее удобство пользования гарнитуром зависит от того, насколько грамотно был сделан первоначальный чертеж
Следует заранее утвердить проект внутреннего пространства тумбы, и включить в него такие модули хранения.
Система доступа и рабочих механизмов является еще одной важной составляющей при проектировании углового шкафа: дверцы не должны мешать друг другу открываться. В процессе сборки гарнитура последствия неверных решений исправить может быть проблематично.

Угловые шкафы отлично дополняют дизайн своим г-образным видом.
Важно измерить все и перенести это на бумагу. Перед тем, как заказывать шкаф, его следует спроектировать
Перед тем, как заказывать шкаф, его следует спроектировать.
Обычная конструкция предполагает одно большое отделение для размещения вещей на плечиках. Другой отдел более узкий, он разделяется на отсеки будущими полочками. При желании можно выполнить так называемый открытый пенал с левой или правой стороны.
Используйте специальные программы для проектировки шкафа.
Для каждого отделения подготавливается своя деталь. Изготавливаются они с учетом припусков. Если шкаф предполагает наличие задней стенки, то материала понадобится намного больше.
Установка фурнитуры на угловые элементы
Установка фурнитуры один из самых ответственных моментов
Поэтому выполнять все необходимо с особой осторожностью. Каждое действие проверяется несколько раз, только после этого происходит переход к следующему. Фурнитура – важный элемент в мебели
Фурнитура – важный элемент в мебели.
К самой нижней детали шкафа, то есть его дну по бокам прикручивается первый крепежный элемент – шток эксцентриковой стяжки. Один за другим. Затем вставляются шкант и замок. Такая же процедура проделывается и с верхней деталью, то есть с «крышей» шкафа. На нее в таком же порядке устанавливается фурнитура.
Подготовка боковых панелей
Боковые панели являются самыми высокими деталями шкафа, так как это боковые стенки. К их низу необходимо прибить ножки, чтобы будущий шкафчик устойчиво стоял. Затем вкручиваются штоки и вставляются шканты.
Разница между собиранием обычного и углового шкафа купе существует.
Спешить не стоит, лучше несколько раз все проверить и подправить, если это необходимо. На первых этапах есть хорошая возможность демонтировать все, поэтому ей нужно пользоваться во избежание ошибок. На одну из боковых панелей прикрепляется сторона шкафа (сначала правая). Происходит установка подпетельников. А на левой стороне необходимо закрепить несколько полкодержателей.
Внутренние вертикальные панели
На заднюю внутреннюю вертикальную панель устанавливаются металлические соединительные уголки. Затем монтируются замки и мелкие штоки для самой большой и верхней полки. В прилежащую стенку необходимо вбить несколько полкодержателей и вкрутить штоки (маленькие) для остальных средних полок.
Вы можете сделать встроенный угловой шкаф.
Так как этот этап предполагает внедрение в конструкцию держателей для полок, то их необходимо проверять на качество установки. Иначе возникает риск, что все вещи могут с них упасть в последствие.
Монтаж конструкции корпуса
Дно ставится на вмонтированные ранее ножки. Далее устанавливается внутренняя вертикальная панель. Каждая по очереди сверху. Прилежащая к внутренней вертикальной панели деталь прикрепляется в центре, а сама вертикальная панель на задний план в край. Надежно соединить их между собой можно при помощи металлических уголков.
Сборку конструкции доверьте профессионалам.
Следующим действием прикрепляется напротив лежащая боковая панель. Замки закрываются. Деталь необходимо немного придерживать. Накладывается угловой верх конструкции и фиксируется деталь с панелями, которые стоят вертикально. Так как конструкция наверняка высокая, то можно воспользоваться стремянкой.
Угловой шкаф — это великолепный способ рационально распределить комнатное пространство в небольшом помещении.
Присоединяется левая вертикальная панель, замки все сразу же фиксируются. Далее вкладываются все полочки при помощи маленьких штоков. Затем набивается задняя стенка по принципу установки всех остальных.
Расположите полки в шкафу функционально.
После чего все отведенное место под полочки можно смело или заполнять.
Навеска двери на угловой шкаф
К двери устанавливаются петли и вкручиваются саморезы. В подпетельники необходимо вставить дверные петли. На конструкции петли обычно установлен специальный винт, который регулирует правильность вхождения этого винта в подпетельник.
Старайтесь точно совмещать все отверстия, не соединяйте их принудительно, вставляя стяжку, когда отверстия еще не совпали полностью.
Все петли фиксируются винтами. Дверь регулируется по необходимому направлению и выравнивается. Последним действием будет установка ручки на дверь.
Другие советы по выбору и уходу
Начинать выбор углового шкафа-купе в спальню необходимо после проведения замеров комнаты и предполагаемого размера шкафа. После этого рекомендуется отправиться в магазин, чтобы присмотреть подходящие и понравившиеся варианты. Когда какая-то модель понравилась, нужно исходить из того, реально ли выполнить ее исходя из сделанных вами замеров.
Прекрасная модель для спальни в черно-белых тонах
К сожалению, большинство покупателей вынуждено выбирать мебель в спальню исходя из допустимых габаритов, в не собственных предпочтений
Продумывать нужно все мелочи
Принт с ангелочками хорош для ребенка
При оформлении заказа, обязательно оговорите не только условия оплаты и доставки, но и то, установят ли вам мебель, полностью собрав ее. Некоторые модели угловых шкафов-купе собрать собственными силами практически невозможно, для этого требуются не только знания, но и специальное оборудование.
Убирая вещи в шкаф, их нужно распределять равномерно, так, чтобы нагрузка на полки, ящики и другие наполнители ложилась равномерно. Благодаря такому подходу мебель будет в эксплуатации дольше.
Для обеспечения пожарной безопасности, дымоходную трубу, проходящую через потолок и крышу, обкладывают кирпичом. Для этого к дымоходной трубе выше края бака сантиметров на 35-40 приваривают квадратную пластину, которая и служит основанием для кладки.
Просто, но со вкусом
Особенности конструкции углового шкафа для кухни
Зачастую площадь стандартной кухни предполагает проектирование г-образного гарнитура. Эта конструкция позволяет максимально продуктивно использовать рабочую площадь кухни, и предусмотреть наиболее удобные варианты расположения шкафов и полок.
Одним из самых эффективных способ организации пространства считается угловой шкаф на кухню. При правильном подходе к его внутренней конструкции, такой модуль будет незаменимым решением для хранения посуды, продуктов или кухонной техники.

Сейчас на рынке большой выбор вариантов мебели для кухни. Покупатель может выбрать дизайн, цвет, материал на свой вкус.
Как сделать комод из ДСП, онлайн расчет тумбы и ящиков
Независимо от габаритных размеров, любой комод из ДСП схематично представляет собой каркас тумбы и вложенные ящики.
Рассмотрим на примере комода высотой 750 мм, шириной 600 мм и глубиной 450 мм.
- Крышка комода не вычисляется, размеры определяют заданные габариты 600х450 мм.
- Стоевые (боковины) комода обычно делают короче на 20 мм (толщина ДСП 16 мм + высота подпятника 4 мм). Чтобы крышка комода нависала над фасадами, стоевую также уменьшают по глубине на 20 мм. То есть размер стоевой будет 730х430 мм. И таких деталей нужно две.
- Дно комода из ДСП рассчитывается просто – от ширины крышки отнимаем 2 толщины ДСП – 16х2=32 мм. Глубина равна ширине стоевой. Размер дна получаем 568х430 мм.
- Планки и цоколь. Крышку комода можно закрепить на уголки. Но для жесткости каркаса лучше крепить на планки. Я делаю ширину планок равной высоте цоколя, обычно это 80 мм. 568х80 мм. Три детали.
Все просто. Если вы «дружите» с Экселем, то вполне можете вбить данные в таблицу вместе с вышеуказанными формулами. И программа сама будет просчитывать размеры деталей в зависимости от изменений в габаритах нужного вам комода.
Нюансы просчета ящиков
С ящиками комода из ДСП своими руками не менее просто. Главное определиться, какой высотой они вам нужны. Упростим себе задачу — пусть все ящики будут одинаковыми. На высоту 750 мм можно сделать как три ящика поглубже или четыре помельче. Пусть ящиков будет три.
- Размер фасадов комода из ДСП своими руками рассчитывается по высоте стоевой и ширине крышки. В нашем случае от 730 мм нужно отнять 80 мм (высоту цоколя) и остаток поделить на 3. Фасады для свободного хода делают несколько меньше, ведь они будут закатываться по периметру кромкой и их чистовой размер увеличится на толщину кромки. Обычно отнимают 3-4 мм от ширины и высоты. Получаем в округлении (730-80)/3-4=213 мм. Итого 3 фасада размером 213х596 мм.
- Бок ящика комода рассчитывается относительно глубины корпуса и длины направляющих. Направляющие предлагаются производителями с шагом 50 мм, начиная от 250 мм и заканчивая 600 мм. В нашем случае глубина стоевой 430 мм, значит, глубина ящика будет 400 мм. Высоту боковины можно задать явно. Я обычно отнимаю 80 мм от фасада, с расчетом, что снизу будет зазор 30 мм, а сверху 50 мм. Но тут – кому как нравится. Бельевые ящики можно сделать и поглубже. Получается 6 боковин размером 400х130 мм.
- Лоб ящика комода из ДСП (передняя и задняя часть ящика) рассчитывается по ширине комода за минусом 90 мм. Получаем 6 деталей размером 510х130 мм.
Теперь таблицу в Эксель можно дополнить для автоматического расчета. Осталось подсчитать размеры задней стенки комода и дна ящиков. Эти детали будут кроиться из ДВП. Рассчитываются просто: чтобы края не выступали, от внешнего периметра задника и днищ отнимается по 2 мм. Получаем:
- Задник будет короче на высоту цоколя, 648х598 мм.
- Дно ящиков в нашем случае 540х398 мм, 3 детали.
Примеры грамотного дизайна
Теперь осталось только придумать, каким же образом нам можно украсить фасад готового шкафа-купе. Разумеется, не стоит забывать о том, что его внешний вид должен гармонировать с остальной мебелью и общим дизайном квартиры.

Чаще всего для украшения фасада шкафа применяют комбинацию двух или трёх расцветок ДСП, например, очень красиво смотрится комбинация «венге+дуб» или «венге+бук», то есть, сочетание тёмного и светлого цветов.

Если вы поклонник натуральных материалов и дизайн вашей квартиры выполнен в эко-стиле, то обратите внимание на вставки из бамбука, ротанга и дерева

Весьма современно и стильно смотрятся двери шкафа-купе, украшенные зеркалами, витражами и стеклянными вставками.

Для претенциозно старинных интерьеров подойдёт шкаф-купе в купеческом стиле, украшенный пилястрами и позолотой.
Если вы – обладатель мебельного гарнитура из кожи, возможно, вам придутся по душе кожаные вставки на дверях шкафа. Смотрится этот ансамбль очень дорого и изысканно.

Как вариант, можно обклеить двери самоклеящейся плёнкой с фотопечатью. Если подобрать подходящий принт, такой шкаф-купе ничем не уступит шкафу, выполненному на заказ профессионалами.

Post Views:
10 039
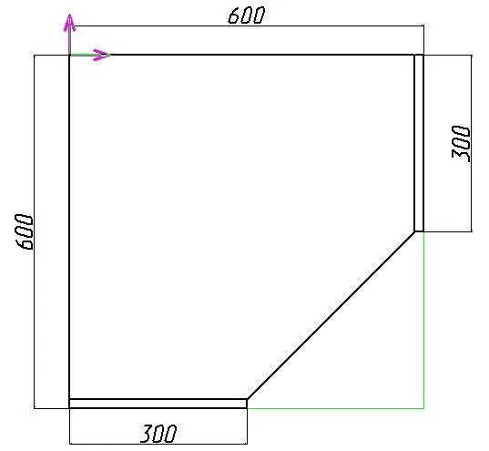
Как рассчитать размеры дверей углового шкафа
Главная сложность расчета дверей на угловой шкаф – это определение ширины створки. Для этого сначала вычисляется ширина проема. Тут придется вспомнить школьную математику и известную формулу – квадрат гипотенузы равен сумме квадратов длины катетов.
Возьмем для примера навесной угловой кухонный шкаф, стандартных размеров 600х600 и глубиной боковин 300 мм.

При толщине боковин 16 мм длина катетов будет составлять (600-300-16)=284 мм.

Вычисляем проем в два действия: 284х284х2=161312, без квадратного корня 401,63. Округляем до 401.
При расчете ширины фасада на угловой шкаф учитывают один нюанс: за счет мебельной петли дверца немного «выдвинется» вперед, не будет плотно примыкать к проему. То есть выйдет на большую диагональ и зазоры образуются сами собой. Поэтому вычитать от величины проема 3 мм, как на обычные шкафы, не стоит. В нашем случае можно округлить до 400 мм.

А вот высота вычисляется аналогично обычным шкафам. В нашем случае для кухонного модуля высотой 720 мм она будет составлять 717-716 мм (в зависимости от того, как рассчитывались остальные фасады кухни, с зазором 4 мм или 3 мм).
Если ширина проема больше 500 мм, то есть резон поставить не одну, а две створки. При расчете ширины необходимо учитывать зазор между фасадами, чтобы створки не мешали открываться друг другу. То есть при ширине проема 600 мм у углового шкафа, ширина каждой двери должна быть порядка 298 мм.

Особенности конструкции
Это мебель, которая заполняет собой угловое пространство в комнате. Секции располагаются вдоль обеих прилегающих стен. Створки у шкафа-купе передвигаются по встроенным полозьям на специальных роликах.
Спальня, как правило, имеет небольшую площадь, поэтому мебель устанавливают малогабаритную. В этом случае перемещению по комнате ничего не мешает. Обычная прямая модель шифоньера займет всю стену, значит, некуда будет поместить книжную полку, предметы для декора, телевизор. Решением станет угловой шкаф, обладающий следующими преимуществами:
- Он занимает не одну, а две стены. Это позволяет сократить ширину одной из секций шкафа-купе, оставляя место для комода, тумбочки, журнального столика или трюмо.
- Компактные размеры мебели позволяют организовать с боков дополнительные полочки для мелких вещей.
- Для раздвижных дверей шкафа-купе не требуется свободное пространство для открывания, что особенно актуально для маленьких спален.
К минусам относят неудобство использования угла внутри шкафа. Это решается при помощи полок, выдвижных ящиков и подвесных систем, которые занимают пространство. В угол мебели, к примеру, размещают штангу под вешалки, полки под одеяла, подушки.

Как сделать угловой шкаф своими руками
Стильный и удобный угловой шкаф можно не только купить или заказать у специалистов, его вполне возможно изготовить самостоятельно. Однако для этого понадобятся некоторые навыки и умения. Также есть очень важные элементы и детали, на которых не стоит экономить, а в некоторых случаях лучше обратиться к специалистам.

Чтобы собрать шкаф самостоятельно, потребуется некоторая подготовка.
Наиболее простой вариант угловой конструкции — это встроенный шкаф-купе. Здесь обязательно понадобится система раздвижных дверей с направляющими, которую изготовить можно только на производстве и для этого понадобится несколько недель. Это время можно использовать для внутренней отделки шкафа.
Какие материалы и инструменты нужны
Прежде всего из материалов понадобится МДФ или ДСП для изготовления полок и специальные уголки для их крепления. Если размеры позволяют разместить штангу для вешалок, то следует ее приобрести.
Для работы потребуются инструменты:
- лобзик электрический;
- дрель, перфоратор;
- молоток, уровень, карандаш, рулетка;
- шуруповерт, дюбеля и саморезы.

Перед работой подготовьте все необходимые инструменты.
Инструкция изготовления
Так как модель встроенная, то боковушками могут выступать стены комнаты, а верхом и дном — потолок и пол. Если квартира новая или после ремонта, то выравнивать стены, пол и потолок не потребуется. В противном случае придется выравнивать стены при помощи штукатурки. Для пола можно использовать самовыравнивающие смеси.
Также следует продумать освещение. Большой популярностью пользуются диодные светильники. Для проводки можно использовать специальные пластиковые гофрированные шины, они позволят сэкономить время и не потребуется штробить стены.
До начала работы потребуется составить подробный чертеж с указанием всех элементов и размеров. Этапы выполнения работы:
- Расчертить на стенах линии крепления полок и установку штанги.
- Закрепить на стенах или потолке светильники и проводку.
- При помощи шуруповерта и саморезов установить штангу.
- Раскроить и распилить МДФ или ДСП на полки в соответствии с размерами.
- Оклеить торцы полок кромочной лентой.
- По линиям разметки на стенах закрепить уголки для крепления полок.
- Установить полки на уголки.
- При помощи перфоратора в потолке и полу просверлить отверстия для крепления системы раздвижных дверей.
- На потолке и полу установить с помощью уровня направляющие и закрепить их саморезами.
- Прикрутить ролики к дверным полотнам и вставить их в направляющие. Для этого необходимо сначала зафиксировать верхнюю часть, а затем немного поджать ролики и направить их в нижнюю рельсу.
Угловая спальня — как правильно выбрать мебель? 65 фото лучших новинок!
Отличным выбором для интерьера вашей спальни это угловой шкаф.
Если вы выбираете модель, подошедшую для вашей комнаты, четко определяете для него место и детально обдумываете его дизайн, как и всей комнаты – тогда этот предмет мебели лучше всего подойдет для интерьера вашей спальни.
Какой из шкафов лучше всего подойдет
Все зависит от конфигурации, в этом случае выделяется несколько видов:
Корпусные шкафы для спален, зачастую имеют большие габариты, и подойдут исключительно для просторных, спальных комнат.
Лучший вариант для маленькой угловой спальни, это встроенный шкаф. Где дном и крышей конструкции, являются потолок и пол. Эти модели производятся только под заказ.
Набором сборной конструкции является модульный шкаф, в котором местоположение элементов постоянно меняют, изменив его форму и расположение для улучшения интерьера комнаты.
Также рекомендуем:
Угловые шкафы для спальных комнат
Шкаф трех угольной формы для спален, имеет равные стороны размещенных под прямым углом.
Трапецеидальный шкаф состоит из трех секций – одной центральной и двух расположенных от нее по бокам. Он более удобный в быту за счет заглаживания углов.
Также рекомендуем:
Идеальным вариантом является Г – образный вид шкафа, экономит площадь и имеет достаточный объем.
Так же имеет место для обыкновенных классических вариантов и шкафов-купе, который, более совершенен.
Также рекомендуем:
Как лучше разместить, угловой шкаф в спальне?
Чаще всего встречается способ, размещения шкафа вдоль двух прилегающих стен, собственно так обычно и располагаются угловые шкафы.
Есть такие, кто совсем скрывают одну стену, а вторую не полностью, что кстати очень практично.
Вообще кроме способа размещения шкафа в углу – существует и более интересный вариант. Одну часть шкафа оставить у стены, а другую нужно расположить перпендикулярно, разделив и закрыв часть угловой спальни.
В образовавшейся загородке можно разместить кровать и тумбочку, а на противоположной стороне загородки можно поставить кресло с журнальным столиком.
Как лучше разместить мебель в спальне?
Есть всевозможные идеи, можно подробно рассмотреть их:
Разместите угловой шкаф Г – образного вида, так чтобы он целиком занял одну сторону комнаты, возле него расположите кровать с тумбочкой. Напротив лучше всего обустраивается угловой диван в спальне.
Делим спальную комнату на две части, получаем маленькую угловую спальню (фото) и гардеробную. Водной части располагаем кровать и тумбочку, в другой мебель гардеробной комнаты.
Делим комнату на две части с помощью шкафа, в одной располагаем стол и стулья, телевизор и угловой диван. По другую сторону размещаем угловую мебель для спальни.
Не все размеры угловых шкафов в спальне, подходят к комнатам имеющих квадратную форму. В одном углу комнаты размещаем шкаф небольшого размера, в другом размещаем кровать, рядом тумбочку и туалетный столик. Остальную часть комнаты мы обустраиваем по своему усмотрению.
Какой цвет выбрать для шкафа?
Дизайн вашей спальни необходимо определить с помощью цвета. Вот несколько отличных советов:
- Угловой шкаф в спальне должен совпадать своим цветом с кроватью и другой мебелью.
- На фоне стен светлого цвета всегда отлично гармонирует шкаф темного цвета, и наоборот на фоне темных цветов всегда хорошо смотрится светлая мебель.
- Хорошо смотрится в спальной комнате шкаф белого или черного цветов, на фоне контрастных тонов. Белая угловая спальня неплохо гармонировала с темными тонами.
Материал, из которого изготовлена мебель для спальни, должен сочетаться между собой или совпадать.
Например, кровать из дерева должна гармонировать с деревянным шкафом. Кровать из кованного железа всегда сочетается с резными изделиями из дерева.
Так же необходимо учесть и стиль, в котором отделана ваша спальная комната: классика, модерн, английский или хай-тек. Для каждого из стиля используется свой материал.
Это, прежде всего обычное зеркало – самый обыкновенный и распространенный вид декорированного элемента, который дополняет дизайн спальной комнаты.
Покупая угловой шкаф со встроенными в него зеркалами
Дизайн углового шкафа
Шкаф в спальной комнате должен сочетаться с общим дизайном комнаты. Для маленьких спальных комнат лучше подбирать модель, которая по своей расцветке совпадает со стенами. Тогда она не будет зрительно сужать и загромождать пространство.
Если помещение большое, можно подобрать контрастную расцветку для предметов мебели и покраски стен.
Дизайн для шкафа, можно подобрать любой, в зависимости от интерьера.
Для изготовления угловых шкафов применяют:
- МДФ или ДВП. Представляет собой традиционный материал. Прекрасно подойдет для комнаты с традиционным интерьером.
- Зеркальное полотно. Оно визуально увеличивает помещение. Также скрывает неправильные пропорции комнаты и делает ее более светлой. Зеркальное полотно может содержать матированный рисунок.
- Прочное прозрачное или матовое стекло повышенной толщины. Иногда под стекло наносят цветное лаковое покрытие либо фотоизображение.
- Сочетание различных материалов. К примеру, можно сочетать ДСП со стеклом или зеркалом.
Сочетая различные материалы, можно создать нескучный и индивидуальный дизайн шкафа для вашей комнаты.
Наполнение и зонирование внутреннего содержимого
Внутреннее наполнение углового шкафа спальни бывает самым разнообразным. Хранение одежды требует включения разных элементов обустройства.
Что может содержать внутреннее пространство:
- полки;
- корзины;
- ящики;
- обувные карусели;
- выдвижные вешалки для брюк;
- крючки;
- штанги для плечиков.
Если предмет мебели для хранения одежды делается под заказ, то заказчик должен заранее продумать организацию внутреннего пространства. В зависимости от того, что планируется хранить внутри, уже подбираются нужные элементы обустройства.

В шкафы для спальни обычно устанавливаются всевозможные полки, штанга, корзинки, крупные ящики.

Некоторые модели имеют даже встроенные раскладные кровати, и прочие предметы мебели. Такие вариации больше подойдут для совсем маленьких спален.
Дизайн угловых шкафов в спальню может отличаться по степени закрытости внутреннего пространства. Оно бывает полностью закрытым или полуоткрытым. Последний вариант представляет собой дополнительный ряд открытых полок, на которые можно поставить элементы декора, будильник или положить книгу.
Выбор места
Здорово, если в помещении, где вы планируете установить шкаф, есть ниша — в этом случае вам останется только собрать «чучело» шкафа, прикрепить полки и вешалки к стенкам ниши, а также поставить раздвижные двери; при этом задняя и боковые стенки будут отсутствовать. Если его нет, можно построить угловой шкаф или просто прикрепить его к стене по вашему выбору. Имейте в виду, что после сборки эта конструкция будет неподвижна, и вы не сможете ее переместить, поэтому тщательно выбирайте расположение своего шкафа.

Затем займись дизайном. Начните с измерения будущего шкафа рулеткой. Измерьте несколько раз и запишите на листе бумаги желаемую высоту, длину и ширину шкафа. Эта информация будет полезна при покупке материалов. Сделайте чертеж масштаба и отметьте на нем все необходимые дополнения, которые планируете поместить в свой шкаф.
Это могут быть полки, ящики, корзины, лофты, вешалки и т.д
Не так уж и сложно самостоятельно нарисовать гардероб, главное — добросовестно подойти к его измерению, учесть шкалу при составлении чертежа, обратить внимание на каждую мелочь

Выполните полный расчет материалов, необходимых для Вашего индивидуального проекта. Перепроверьте и пересчитайте несколько раз. Помните о золотом правиле: измерьте дважды, отрежьте один раз. Будет очень неприятно, если придется что-то переделывать во время строительства.

Какая должна быть глубина шкафа в спальне?
Глубина шкафа в спальне может зависеть от того, для каких целей он будет использоваться, а также от наличия свободного пространства в комнате. Обычно глубина шкафа в спальне составляет от 50 до 60 см, что достаточно для размещения повседневной одежды, постельного белья и других мелочей. Если шкаф будет использоваться для хранения длинной одежды, такой как платья или пальто, то рекомендуется увеличить глубину до 70 см или более. Важно также учесть высоту потолков и доступное пространство в комнате при выборе глубины шкафа.

Добавить комментарий
Для отправки комментария вам необходимо авторизоваться.